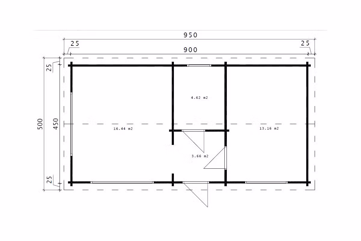
Blockhaus mit Schlafzimmer “Hansa Holiday H” 10x5m

SKU: G0242
Lieferzeit: 5 - 7 Wochen

16.150,00 

BLACK FRIDAY! Extra -1.500  an der Kasse

Weiterlesen

Das Blockhaus “Hansa Holiday H” eignet sich nicht nur als Ferienhaus, sondern auch als Gartenbüro für mehrere Personen oder großzügige Gartenlounge mit Hobbyraum. Es verfügt über einen zentralen Flur, von welchem drei unterschiedlich große Räume betreten werden können. Dabei kann es sich beispielsweise um ein Wohnzimmer, ein Schlafzimmer und ein Badezimmer handeln. 70 mm starke Wandbohlen, 28 mm starke Bodendielen, doppelt verglaste Türen und Fenster sowie Metallstützen, die in allen vier Ecken in die gesamte Wand eingelassen sind, garantieren die Stabilität und Energieeffizienz von Hansa Holiday H. Unser professionelles Montageteam kann das Blockhaus innerhalb von drei Tagen bauen, mit unserer detaillierten Aufbauanleitung und einer Hilfskraft benötigen Sie für den Aufbau etwa sechs Tage.

Individuelle Ausstattung & Services

Lieferzeit: 3 - 5 Wochen
Menge

Angebot per E-Mail

Wenn Sie dieses Formular absenden, erhalten Sie ein PDF mit Details zu diesem Kabinenmodell, Produktabmessungen und Preisen, einschließlich aller von Ihnen gewählten Optionen.

Dieses Feld wird bei der Anzeige des Formulars ausgeblendet
oder

Bitte um Hilfe

Hansagarten24 Kontakt

Du wirst sicher Fragen haben. Unsere erfahrenen Spezialisten helfen dir gerne bei jeder Anfrage.

Dieses Feld wird bei der Anzeige des Formulars ausgeblendet
oder

Produkt-Tags

Wandstärke 70
Breite 898
Tiefe 448
Höhe 317
Raumbereich 38
Dachform Satteldach
Dachgröße 52
Dachneigung 18.8
Dachüberstand 25
Dachbretter 18
Fußbodenbretter 28
Zimmer 4
Etagen 1
Fenster anzahl 4
Verglasung Doppelverglasung, gehärtetes Sicherheitsglas
Holzart Nordische Fichte, unbehandelt
Farbe Naturholz (unbehandelt)
Kabinentyp mit Schlafboden
Zusätzliche Informationen Sicherheitsglas in Fenstern und Türen, Zylinderschloss, Dreh-Kipp-Fenster, verstärkende Metallstäbe in Wänden, imprägnierte Fundamentbalken, Sturmverstrebungen, Montagesätze, Montageanleitung,

Ihre Bestellung ist automatisch 120 Tage abgesichert. Der Käuferschutz PLUS (bis 20.000 €) kostet 12 €/Jahr und kann auf Wunsch von Hansagarten24 erstattet werden.

Hauptvorteile unserer Holzhäuser

Unsere Standard-Kabinen-Sets haben so viele Premium-Ausstattungsmerkmale. Ein Gartenhaus in ähnlicher Qualität und mit einer vergleichbaren Premium-Ausstattung wie unsere Standard-Kabinen-Sets finden Sie wohl kaum.

Deutsche Kipp- und Drehsysteme mit mehreren Verriegelungspunkten

sorgen bei unseren Fenstern für optimalen Benutzerkomfort und eine...Mehr anzeigensorgen bei unseren Fenstern für optimalen Benutzerkomfort und eine längere Lebensdauer.Weniger anzeigen

Gehärtetes Sicherheitsglas in Türen und Fenstern

gewährleistet Langlebigkeit und Sicherheit. Gehärtetes Glas ist fünfmal...Mehr anzeigengewährleistet Langlebigkeit und Sicherheit. Gehärtetes Glas ist fünfmal stärker als normales Glas, und bei starkem Aufprall zerfällt gehärtetes Glas in kleine stumpfe Stücke und zerbricht nicht in Scherben wie normales Glas. Dies reduziert die Wahrscheinlichkeit von Verletzungen deutlich, während normales Glas in lange, scharfe Teile zerbricht und schwere Verletzungen verursachen kann.Weniger anzeigen

Zweifach verglaste Türen und Fenster mit Wasseleisten aus Aluminium

(in allen Modellen mit mindestens 44 mm Wandstärke enthalten) erhöhen...Mehr anzeigen(in allen Modellen mit mindestens 44 mm Wandstärke enthalten) erhöhen deutlich die Witterungs- und Temperaturbeständigkeit und ermöglichen es Ihnen, Ihr Holzhaus in kälteren Monaten zu nutzen, insbesondere in Verbindung mit unseren zusätzlichen Kabinenisolierungskits und einem einfachen Heizsystem.Weniger anzeigen

In Europa hergestellte Türbeschläge, Türgriffe und Schlösser

sorgen für eine hervorragende Funktionsfähigkeit und Haltbarkeit.

Sturmleisten aus Metall und zusätzlich verstärkende Streben in den Wänden

(in allen Modellen mit mindestens 44 mm Wandstärke enthalten) sorgen...Mehr anzeigen (in allen Modellen mit mindestens 44 mm Wandstärke enthalten) sorgen für bessere Stabilität und mehr Widerstandsfähigkeit.Weniger anzeigen

Massive Dachkonstruktionen

sorgen für eine Dachtragfähigkeit von mindestens 120-200 kg/m2 für alle...Mehr anzeigensorgen für eine Dachtragfähigkeit von mindestens 120-200 kg/m2 für alle unsere Holzkabinen und garantieren, dass Ihr Gartenhaus stabil ist und viele Jahre hält.Weniger anzeigen

Vom Werk aus imprägnierte Fundamentrahmen

ermöglichen es Ihnen, sofort mit der Montage zu beginnen. Die übrigen...Mehr anzeigenermöglichen es Ihnen, sofort mit der Montage zu beginnen. Die übrigen Teile sind (von innen und außen) nach Abschluss der Montage zu behandeln. Werks imprägnierte Holzteile können grünliche Verfärbungen aufweisen.Weniger anzeigen

Vom Werk aus imprägnierte Terrassenbretter

sind sehr benutzerfreundlich, weil sie Arbeit einsparen. Unsere tief...Mehr anzeigensind sehr benutzerfreundlich, weil sie Arbeit einsparen. Unsere tief imprägnierten Terrassenbretter erfordern keine zusätzliche Behandlung, so dass Sie sie nur noch montieren müssen und sofort genießen können. Werks imprägnierte Holzteile können grünliche Verfärbungen aufweisen.Weniger anzeigen

Alle Holzhaus-Komponenten bestehen aus sorgfältig ausgewählter, langsam gewachsener, dichter nordischer Fichte

die eine bessere Stabilität und Langlebigkeit im Vergleich zu dem häufig...Mehr anzeigendie eine bessere Stabilität und Langlebigkeit im Vergleich zu dem häufig verwendeten Holz aus südlichen Ländern gewährleistet.Weniger anzeigen

Die wetterfeste Verpackung

schützt Ihre Kabine vor Feuchtigkeit, Sonne, UV-Strahlung und anderen...Mehr anzeigenschützt Ihre Kabine vor Feuchtigkeit, Sonne, UV-Strahlung und anderen Witterungsbedingungen. Ihr Paket kann problemlos mehrere Wochen draußen bleiben, wenn Sie es nicht sofort nach der Lieferung installieren.Weniger anzeigen

Mehr als zwanzig Jahre Erfahrung in der Konstruktion und Produktion von Holzgebäuden

stellen sicher, dass wir ein besseres Wissen und Know-how in der...Mehr anzeigenstellen sicher, dass wir ein besseres Wissen und Know-how in der Herstellung und Lieferung von hochwertigen Holzhäusern anbieten könnenWeniger anzeigen

5 Jahre Werksgarantie

auf alle Holzteile

Bestellprozess

1

Bestellen Sie online oder rufen Sie uns an.

Wir verlangen eine Anzahlung von 50% bei Bestellung, der verbleibende Betrag ist 5 Tage vor der Lieferung fällig. Wir akzeptieren alle gängigen Karten oder Zahlungen per BACs. Sobald wir Ihre Bestellung erhalten, werden der Kabinentyp und die Bestelldetails an die Fabrik weitergeleitet.

2

Produktion

Je nach Modell haben wir es auf Lager oder stellen es nach Bestellung her. Wenn Sie maßgeschneiderte Elemente zu Ihrer Kabine hinzugefügt haben, benötigen wir Ihre Zustimmung zu den endgültigen Zeichnungen, bevor die Produktion beginnt.

3

Lieferaktualisierung

Kurz nachdem Ihre Bestellung aufgegeben wurde, erhalten Sie ein voraussichtliches Lieferdatum für Ihre Kabine, und wir halten Sie über den Fortschritt und das geplante Lieferdatum auf dem Laufenden! Unsere Lieferzeiten variieren im Laufe des Jahres je nach Produktionsvolumen.

4

Verlässt unsere Fabrik

Die Produktion der Kabine ist nun abgeschlossen. Ihre Kabine ist jetzt flach verpackt und in wetterfester Folie eingewickelt, bereit für den Versand zu unserem Lager in Deutschland.

5

Ankunft bei unserem Logistikpartner in Deutschland

Sobald die Kabine in unserem Lager eingetroffen ist, können wir die Lieferung für Sie buchen. Unser freundliches und effizientes Lieferteam strebt stets eine schnelle und sichere Lieferung an und wird Sie kontaktieren, um ein passendes Lieferdatum zu vereinbaren.

6

Lieferung bis vor Ihre Tür

Ihre Bestellung ist nun abgeschlossen und bereit zur Installation. Falls Sie die Installation gebucht haben, wird das Team in Kürze bei Ihnen sein, um Ihre Kabine zu montieren.

Kaufen Sie mit Vertrauen – wir haben ein freundliches, in Deutschland ansässiges Kundenserviceteam, das Ihnen in jeder Phase des oben Genannten gerne weiterhilft.

Die Lieferzeiten sind für verschiedene Produkte unterschiedlich, bitte entnehmen Sie diese Informationen aus der Produktübersicht. Wir liefen nach Deutschland, Österreich und in die Schweiz.

Lieferung nur auf Festland – Inselzustellungen abweichend 

Bitte beachten Sie, dass wir unsere Lieferungen derzeit ausschließlich auf das Festland anbieten. Für Bestellungen, die auf Inseln zugestellt werden sollen, können abweichende Versandkosten anfallen. Diese werden individuell kalkuliert und vor der Versandbestätigung mit Ihnen abgestimmt. Für weitere Informationen oder bei Fragen zur Lieferung auf Inseln, kontaktieren Sie uns gerne.

Bedingungen für Lieferungen in die Schweiz, Liechtenstein und Österreich

Kunden aus Österreich müssen eine Lieferpauschale von 200 Euro verrichten.

Preise für unsere Kunden aus der Schweiz werden ohne Mehrwertsteuer und inklusive Lieferung angegeben.

Kunden, die Gartenhäuser, Gartensaunen, Gartenlauben und andere Gartengebäude bestellen, müssen für die Export- und Importabfertigung einen Fixbetrag von 490 Euro (zzg. MwSt.) bezahlen sowie 8 % Mehrwertsteuer auf den Rechnungsbetrag. Der Hansagarten24 Online-Shop ist nicht verantwortlich für die Berechnung der Mehrwertsteuer und die Zollgebühren durch die Schweizer Behörden.

Lieferkosten für angrenzende Länder wie z.b. die Niederlande oder Frankreich auf Anfrage.

Die Lieferung erfolgt in der Regel mit einem LKW (6 Räder, 38 Tonnen), der mit einem Gabelstapler für das Abladen ausgerüstet ist. Es wird ausreichend Platz für das Fahrzeug benötigt um die Ware seitlich abzuladen (Falls Sie dazu Fragen haben, rufen Sie uns bitte an: +49 (0)6746 93 99 100).

Falls das Produkt wegen Platzmangel nicht abgeladen werden kann, können Lieferkosten anfallen.

Wir werden uns stets darum bemühen, das Holzhaus Ihren Wünschen entsprechend abzustellen. Da der Gabelstapler schwer ist, obliegt es jedoch dem Fahrer zu entscheiden, ob er auf Ihr Grundstück fahren kann oder nicht.

Der Kunde (oder ein Vertreter) muss bei der Lieferung des Holzhauses anwesend sein und bei Bedarf beim Abladen assistieren.

Es ist wichtig, dass Sie bei der Bestellung Ihre Telefonnummer im Bestellformular hinterlassen. Bitte stellen Sie sicher, dass Sie vor und am Tag der Lieferung zu den Geschäftszeiten erreichbar sind. Wir werden Ihnen stets den voraussichtlichen Liefertermin (+/- 5 Tage) innerhalb von 48 Stunden nach Ihrer Auftragserteilung und dem Zahlungseingang mitteilen und Sie mindestens 3 Tage vor der Lieferung kontaktieren. Wir werden Ihnen einen möglichst genauen Liefertermin geben. Wir liefern keine Holzhäuser vor einer Kontaktaufnahme mit Ihnen aus.

Die Hansagarten24 GmbH stellt keine Standsicherheitsnachweise (Statik) für Gartenhäuser zur Verfügung.

Falls ein Standsicherheitsnachweis von Behörden gefordert wird, müssen Kunden eine solche von einem in Deutschland zugelassenen Ingenieur/Architekten anfertigen lassen.

Die Hansagarten24 GmbH übernimmt keine kosten, die dadurch anfallen können.

Bei der Lieferung sind die Holzhäuser wasserdicht verpackt und können so mehrere Wochen im Freien stehen.

Falls Sie Fragen zur Lieferung oder anderen Themen haben, kontaktieren Sie uns bitte: +49 (0)6746 93 99 100

gear

Sprich mit einem Experten
Wir kümmern uns um jeden Kunden!

+49 (0)6746 93 99 100

Linien sind geöffnet am:
Wochentage:
09:00 – 17:00 Uhr.

info@hansagarten24.de

Das könnte dir auch gefallen …

Blockhaus mit Schlafzimmer “Hansa Holiday H” 10x5m

SKU: G0242
Lieferzeit: 5 - 7 Wochen

16.150,00 

BLACK FRIDAY! Extra -1.500  an der Kasse

Weiterlesen
Das Blockhaus “Hansa Holiday H” eignet sich nicht nur als Ferienhaus, sondern auch als Gartenbüro für mehrere Personen oder großzügige Gartenlounge mit Hobbyraum. Es verfügt über einen zentralen Flur, von welchem drei unterschiedlich große Räume betreten werden können. Dabei kann es sich beispielsweise um ein Wohnzimmer, ein Schlafzimmer und ein Badezimmer handeln. 70 mm starke Wandbohlen, 28 mm starke Bodendielen, doppelt verglaste Türen und Fenster sowie Metallstützen, die in allen vier Ecken in die gesamte Wand eingelassen sind, garantieren die Stabilität und Energieeffizienz von Hansa Holiday H. Unser professionelles Montageteam kann das Blockhaus innerhalb von drei Tagen bauen, mit unserer detaillierten Aufbauanleitung und einer Hilfskraft benötigen Sie für den Aufbau etwa sechs Tage.

Das Blockhaus “Hansa Holiday H” eignet sich nicht nur als Ferienhaus, sondern auch als Gartenbüro für mehrere Personen oder großzügige Gartenlounge mit Hobbyraum. Es verfügt über einen zentralen Flur, von welchem drei unterschiedlich große Räume betreten werden können. Dabei kann es sich beispielsweise um ein Wohnzimmer, ein Schlafzimmer und ein Badezimmer handeln. 70 mm starke Wandbohlen, 28 mm starke Bodendielen, doppelt verglaste Türen und Fenster sowie Metallstützen, die in allen vier Ecken in die gesamte Wand eingelassen sind, garantieren die Stabilität und Energieeffizienz von Hansa Holiday H. Unser professionelles Montageteam kann das Blockhaus innerhalb von drei Tagen bauen, mit unserer detaillierten Aufbauanleitung und einer Hilfskraft benötigen Sie für den Aufbau etwa sechs Tage.

Individuelle Ausstattung & Services

Lieferzeit: 3 - 5 Wochen
Menge

Angebot per E-Mail

Wenn Sie dieses Formular absenden, erhalten Sie ein PDF mit Details zu diesem Kabinenmodell, Produktabmessungen und Preisen, einschließlich aller von Ihnen gewählten Optionen.

Dieses Feld wird bei der Anzeige des Formulars ausgeblendet
oder

Bitte um Hilfe

Hansagarten24 Kontakt

Du wirst sicher Fragen haben. Unsere erfahrenen Spezialisten helfen dir gerne bei jeder Anfrage.

Dieses Feld wird bei der Anzeige des Formulars ausgeblendet
oder

Produkt-Tags

Wandstärke 70
Breite 898
Tiefe 448
Höhe 317
Raumbereich 38
Dachform Satteldach
Dachgröße 52
Dachneigung 18.8
Dachüberstand 25
Dachbretter 18
Fußbodenbretter 28
Zimmer 4
Etagen 1
Fenster anzahl 4
Verglasung Doppelverglasung, gehärtetes Sicherheitsglas
Holzart Nordische Fichte, unbehandelt
Farbe Naturholz (unbehandelt)
Kabinentyp mit Schlafboden
Zusätzliche Informationen Sicherheitsglas in Fenstern und Türen, Zylinderschloss, Dreh-Kipp-Fenster, verstärkende Metallstäbe in Wänden, imprägnierte Fundamentbalken, Sturmverstrebungen, Montagesätze, Montageanleitung,

Ihre Bestellung ist automatisch 120 Tage abgesichert. Der Käuferschutz PLUS (bis 20.000 €) kostet 12 €/Jahr und kann auf Wunsch von Hansagarten24 erstattet werden.

Hauptvorteile unserer Holzhäuser

Unsere Standard-Kabinen-Sets haben so viele Premium-Ausstattungsmerkmale. Ein Gartenhaus in ähnlicher Qualität und mit einer vergleichbaren Premium-Ausstattung wie unsere Standard-Kabinen-Sets finden Sie wohl kaum.

Deutsche Kipp- und Drehsysteme mit mehreren Verriegelungspunkten

sorgen bei unseren Fenstern für optimalen Benutzerkomfort und eine...Mehr anzeigensorgen bei unseren Fenstern für optimalen Benutzerkomfort und eine längere Lebensdauer.Weniger anzeigen

Gehärtetes Sicherheitsglas in Türen und Fenstern

gewährleistet Langlebigkeit und Sicherheit. Gehärtetes Glas ist fünfmal...Mehr anzeigengewährleistet Langlebigkeit und Sicherheit. Gehärtetes Glas ist fünfmal stärker als normales Glas, und bei starkem Aufprall zerfällt gehärtetes Glas in kleine stumpfe Stücke und zerbricht nicht in Scherben wie normales Glas. Dies reduziert die Wahrscheinlichkeit von Verletzungen deutlich, während normales Glas in lange, scharfe Teile zerbricht und schwere Verletzungen verursachen kann.Weniger anzeigen

Zweifach verglaste Türen und Fenster mit Wasseleisten aus Aluminium

(in allen Modellen mit mindestens 44 mm Wandstärke enthalten) erhöhen...Mehr anzeigen(in allen Modellen mit mindestens 44 mm Wandstärke enthalten) erhöhen deutlich die Witterungs- und Temperaturbeständigkeit und ermöglichen es Ihnen, Ihr Holzhaus in kälteren Monaten zu nutzen, insbesondere in Verbindung mit unseren zusätzlichen Kabinenisolierungskits und einem einfachen Heizsystem.Weniger anzeigen

In Europa hergestellte Türbeschläge, Türgriffe und Schlösser

sorgen für eine hervorragende Funktionsfähigkeit und Haltbarkeit.

Sturmleisten aus Metall und zusätzlich verstärkende Streben in den Wänden

(in allen Modellen mit mindestens 44 mm Wandstärke enthalten) sorgen...Mehr anzeigen (in allen Modellen mit mindestens 44 mm Wandstärke enthalten) sorgen für bessere Stabilität und mehr Widerstandsfähigkeit.Weniger anzeigen

Massive Dachkonstruktionen

sorgen für eine Dachtragfähigkeit von mindestens 120-200 kg/m2 für alle...Mehr anzeigensorgen für eine Dachtragfähigkeit von mindestens 120-200 kg/m2 für alle unsere Holzkabinen und garantieren, dass Ihr Gartenhaus stabil ist und viele Jahre hält.Weniger anzeigen

Vom Werk aus imprägnierte Fundamentrahmen

ermöglichen es Ihnen, sofort mit der Montage zu beginnen. Die übrigen...Mehr anzeigenermöglichen es Ihnen, sofort mit der Montage zu beginnen. Die übrigen Teile sind (von innen und außen) nach Abschluss der Montage zu behandeln. Werks imprägnierte Holzteile können grünliche Verfärbungen aufweisen.Weniger anzeigen

Vom Werk aus imprägnierte Terrassenbretter

sind sehr benutzerfreundlich, weil sie Arbeit einsparen. Unsere tief...Mehr anzeigensind sehr benutzerfreundlich, weil sie Arbeit einsparen. Unsere tief imprägnierten Terrassenbretter erfordern keine zusätzliche Behandlung, so dass Sie sie nur noch montieren müssen und sofort genießen können. Werks imprägnierte Holzteile können grünliche Verfärbungen aufweisen.Weniger anzeigen

Alle Holzhaus-Komponenten bestehen aus sorgfältig ausgewählter, langsam gewachsener, dichter nordischer Fichte

die eine bessere Stabilität und Langlebigkeit im Vergleich zu dem häufig...Mehr anzeigendie eine bessere Stabilität und Langlebigkeit im Vergleich zu dem häufig verwendeten Holz aus südlichen Ländern gewährleistet.Weniger anzeigen

Die wetterfeste Verpackung

schützt Ihre Kabine vor Feuchtigkeit, Sonne, UV-Strahlung und anderen...Mehr anzeigenschützt Ihre Kabine vor Feuchtigkeit, Sonne, UV-Strahlung und anderen Witterungsbedingungen. Ihr Paket kann problemlos mehrere Wochen draußen bleiben, wenn Sie es nicht sofort nach der Lieferung installieren.Weniger anzeigen

Mehr als zwanzig Jahre Erfahrung in der Konstruktion und Produktion von Holzgebäuden

stellen sicher, dass wir ein besseres Wissen und Know-how in der...Mehr anzeigenstellen sicher, dass wir ein besseres Wissen und Know-how in der Herstellung und Lieferung von hochwertigen Holzhäusern anbieten könnenWeniger anzeigen

5 Jahre Werksgarantie

auf alle Holzteile

Bestellprozess

1

Bestellen Sie online oder rufen Sie uns an.

Wir verlangen eine Anzahlung von 50% bei Bestellung, der verbleibende Betrag ist 5 Tage vor der Lieferung fällig. Wir akzeptieren alle gängigen Karten oder Zahlungen per BACs. Sobald wir Ihre Bestellung erhalten, werden der Kabinentyp und die Bestelldetails an die Fabrik weitergeleitet.

2

Produktion

Je nach Modell haben wir es auf Lager oder stellen es nach Bestellung her. Wenn Sie maßgeschneiderte Elemente zu Ihrer Kabine hinzugefügt haben, benötigen wir Ihre Zustimmung zu den endgültigen Zeichnungen, bevor die Produktion beginnt.

3

Lieferaktualisierung

Kurz nachdem Ihre Bestellung aufgegeben wurde, erhalten Sie ein voraussichtliches Lieferdatum für Ihre Kabine, und wir halten Sie über den Fortschritt und das geplante Lieferdatum auf dem Laufenden! Unsere Lieferzeiten variieren im Laufe des Jahres je nach Produktionsvolumen.

4

Verlässt unsere Fabrik

Die Produktion der Kabine ist nun abgeschlossen. Ihre Kabine ist jetzt flach verpackt und in wetterfester Folie eingewickelt, bereit für den Versand zu unserem Lager in Deutschland.

5

Ankunft bei unserem Logistikpartner in Deutschland

Sobald die Kabine in unserem Lager eingetroffen ist, können wir die Lieferung für Sie buchen. Unser freundliches und effizientes Lieferteam strebt stets eine schnelle und sichere Lieferung an und wird Sie kontaktieren, um ein passendes Lieferdatum zu vereinbaren.

6

Lieferung bis vor Ihre Tür

Ihre Bestellung ist nun abgeschlossen und bereit zur Installation. Falls Sie die Installation gebucht haben, wird das Team in Kürze bei Ihnen sein, um Ihre Kabine zu montieren.

Kaufen Sie mit Vertrauen – wir haben ein freundliches, in Deutschland ansässiges Kundenserviceteam, das Ihnen in jeder Phase des oben Genannten gerne weiterhilft.

Die Lieferzeiten sind für verschiedene Produkte unterschiedlich, bitte entnehmen Sie diese Informationen aus der Produktübersicht. Wir liefen nach Deutschland, Österreich und in die Schweiz.

Lieferung nur auf Festland – Inselzustellungen abweichend 

Bitte beachten Sie, dass wir unsere Lieferungen derzeit ausschließlich auf das Festland anbieten. Für Bestellungen, die auf Inseln zugestellt werden sollen, können abweichende Versandkosten anfallen. Diese werden individuell kalkuliert und vor der Versandbestätigung mit Ihnen abgestimmt. Für weitere Informationen oder bei Fragen zur Lieferung auf Inseln, kontaktieren Sie uns gerne.

Bedingungen für Lieferungen in die Schweiz, Liechtenstein und Österreich

Kunden aus Österreich müssen eine Lieferpauschale von 200 Euro verrichten.

Preise für unsere Kunden aus der Schweiz werden ohne Mehrwertsteuer und inklusive Lieferung angegeben.

Kunden, die Gartenhäuser, Gartensaunen, Gartenlauben und andere Gartengebäude bestellen, müssen für die Export- und Importabfertigung einen Fixbetrag von 490 Euro (zzg. MwSt.) bezahlen sowie 8 % Mehrwertsteuer auf den Rechnungsbetrag. Der Hansagarten24 Online-Shop ist nicht verantwortlich für die Berechnung der Mehrwertsteuer und die Zollgebühren durch die Schweizer Behörden.

Lieferkosten für angrenzende Länder wie z.b. die Niederlande oder Frankreich auf Anfrage.

Die Lieferung erfolgt in der Regel mit einem LKW (6 Räder, 38 Tonnen), der mit einem Gabelstapler für das Abladen ausgerüstet ist. Es wird ausreichend Platz für das Fahrzeug benötigt um die Ware seitlich abzuladen (Falls Sie dazu Fragen haben, rufen Sie uns bitte an: +49 (0)6746 93 99 100).

Falls das Produkt wegen Platzmangel nicht abgeladen werden kann, können Lieferkosten anfallen.

Wir werden uns stets darum bemühen, das Holzhaus Ihren Wünschen entsprechend abzustellen. Da der Gabelstapler schwer ist, obliegt es jedoch dem Fahrer zu entscheiden, ob er auf Ihr Grundstück fahren kann oder nicht.

Der Kunde (oder ein Vertreter) muss bei der Lieferung des Holzhauses anwesend sein und bei Bedarf beim Abladen assistieren.

Es ist wichtig, dass Sie bei der Bestellung Ihre Telefonnummer im Bestellformular hinterlassen. Bitte stellen Sie sicher, dass Sie vor und am Tag der Lieferung zu den Geschäftszeiten erreichbar sind. Wir werden Ihnen stets den voraussichtlichen Liefertermin (+/- 5 Tage) innerhalb von 48 Stunden nach Ihrer Auftragserteilung und dem Zahlungseingang mitteilen und Sie mindestens 3 Tage vor der Lieferung kontaktieren. Wir werden Ihnen einen möglichst genauen Liefertermin geben. Wir liefern keine Holzhäuser vor einer Kontaktaufnahme mit Ihnen aus.

Die Hansagarten24 GmbH stellt keine Standsicherheitsnachweise (Statik) für Gartenhäuser zur Verfügung.

Falls ein Standsicherheitsnachweis von Behörden gefordert wird, müssen Kunden eine solche von einem in Deutschland zugelassenen Ingenieur/Architekten anfertigen lassen.

Die Hansagarten24 GmbH übernimmt keine kosten, die dadurch anfallen können.

Bei der Lieferung sind die Holzhäuser wasserdicht verpackt und können so mehrere Wochen im Freien stehen.

Falls Sie Fragen zur Lieferung oder anderen Themen haben, kontaktieren Sie uns bitte: +49 (0)6746 93 99 100

gear

Sprich mit einem Experten
Wir kümmern uns um jeden Kunden!

+49 (0)6746 93 99 100

Linien sind geöffnet am:
Wochentage:
09:00 – 17:00 Uhr.

info@hansagarten24.de

Das könnte dir auch gefallen …